240 m2
2025, under construction
role: architectural planer
air architecture
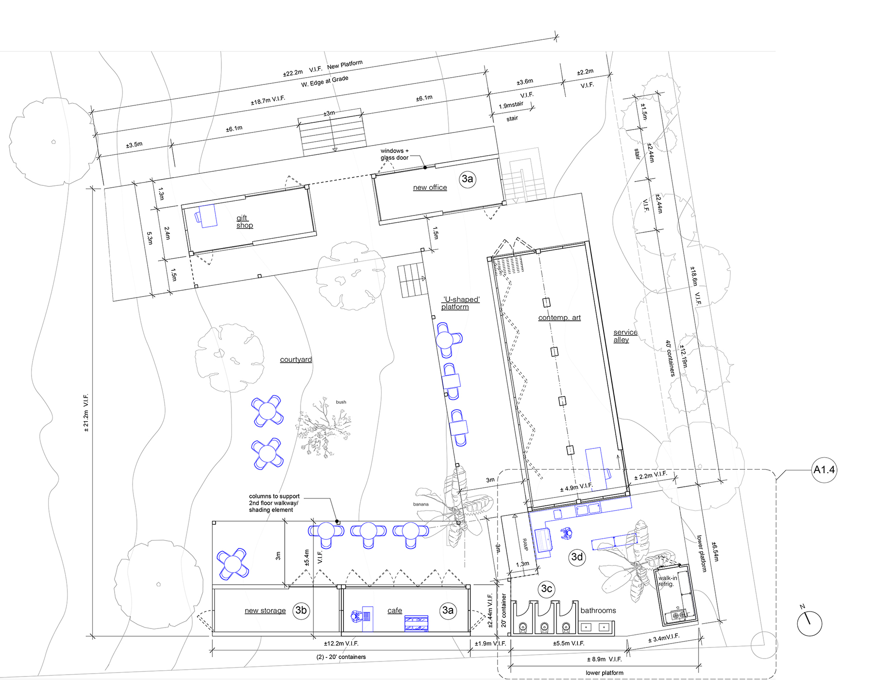
Shipping containers serve as quick module for a phased expansion of the gallery. Inspired by the gallery collection, the containers are ‘masked’—clad with wood and reed panels, glass doors and windows. These masked containers are stacked and contextualized in a structure of walk-ways and exhibition areas.
rendering 1
plan, phase 3
photos site shipping containers (left) and gallery mask collection (right)
photos site shipping containers
gallery mask collection
rendering 2
