250,000 m2
completed in 2020
role: architectural planer
Schüßler Plan
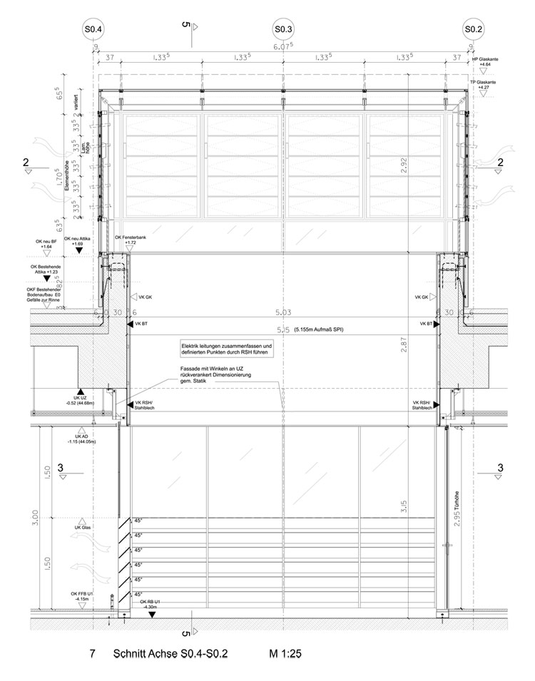
Design and detailing of an emergency fresh-air intake (Nachströmung) system for the integrated U-Bahn station. This system comprises two glass cube structures with operable louvers that opnen atomaticly in case of emergency. Positioned within the arrivalzone, their design required both technical precision and careful integration into architectural language of the terminal.
photo-montage BER aerial
analogue model study
photo-montage
CAD model study
Construction Drawings
site photos
detail sketch
Exploded Axonometric


